1525 W Riviera DriveMerritt Island, FL 32952




Mortgage Calculator
Monthly Payment (Est.)
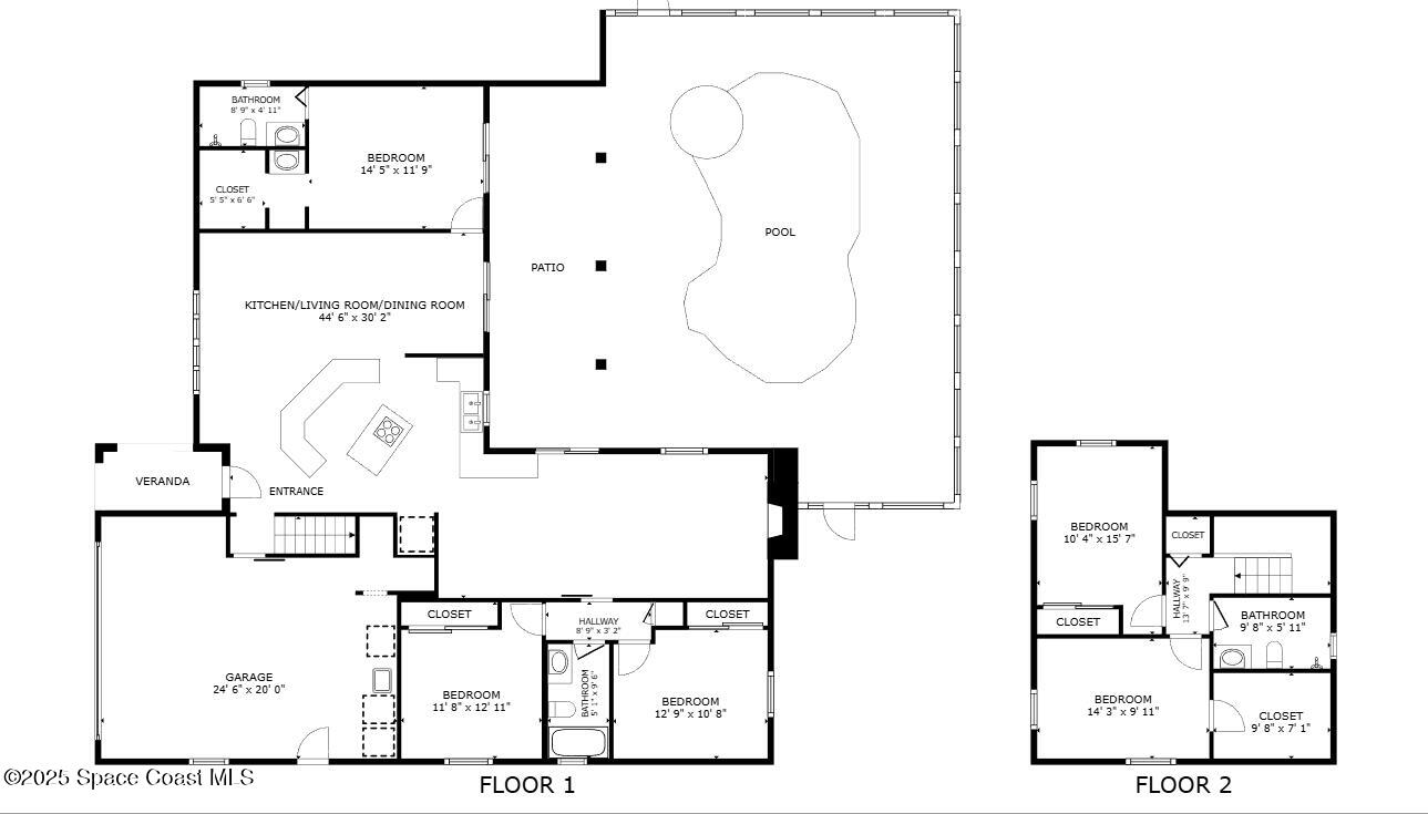
$2,961Beautiful direct canal 5 bedroom, 3 bath home with a pool and spa. Lap in luxury, this home has it all. A great home for entertaining, boating or just relaxing. The canal leads to the Banana River and is close to Port Canaveral. Features include a master bedroom downstairs and has a solar heated pool with built in grill, built in bar with wine cooler and a screened in lanai with patio pavers. Designed with an open floor plan with a split bedroom. Second story has 2 bedrooms and a full bath. This home has granite tops, plantation blinds, gas fireplace, a shed, a generator, natural gas and a dock with a boat lift. Home has a been well maintained and has so many upgrades along with landscaping throughout the the front and back of the home . Seller is offering a $10,000 credit to buyer!
| a month ago | Listing updated with changes from the MLS® | |
| a month ago | Status changed to Active Under Contract | |
| a month ago | Price changed to $649,000 | |
| 3 months ago | Listing first seen on site |
The data relating to real estate shown on this website comes in part from the Internet Data Exchange (IDX) program of Space Coast Association of REALTORS®, Inc. IDX information is provided exclusively for consumers' personal, non-commercial use and may not be used for any purpose other than to identify prospective properties consumers may be interested in purchasing. All data is deemed reliable but is not guaranteed accurate.
Did you know? You can invite friends and family to your search. They can join your search, rate and discuss listings with you.